




1.4 Acres Development Land in Ulleswater Street for Sale - £450,000
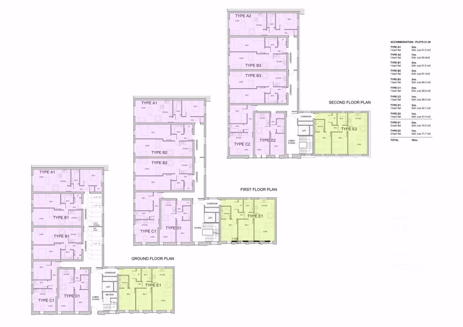
Incredible development opportunity in Leigh, Greater Manchester. Full planning permission for converting gym into 18 apartments and building 20 townhouses. Offers per plot. Historic site with no affordable element. Reference A/22/94743/MAJOR.
1.4 Acres Development Land in Ulleswater Street for Sale - £450,000
Description
Incredible development opportunity in Leigh, Greater Manchester. Full planning permission for converting gym into 18 apartments and building 20 townhouses. Offers per plot. Historic site with no affordable element. Reference A/22/94743/MAJOR.
Contact Agent
Smart Picks — Professionals Relevant to This Land
Based on this property's key features, here are the specialists you may want to consult as part of your due diligence: land agents, rics surveyors, rural solicitors and planning consultants.

Land Agents
Essential for navigating the land market, finding buyers, and securing the best price.

RICS Surveyors
High-value property (£450K+) requires professional valuation for accurate pricing and due diligence.

Rural Solicitors
Significant investment (£450K+) requires legal expertise for conveyancing, title checks, and transaction security.

Planning Consultants
Planning-sensitive site needs expert guidance for applications and development strategy.
Location
Ulleswater Street